Matthew Perry Installed Jacuzzi in $6 Million Mansion Months Before His Tragic Death, Building Permits Reveal

Beloved Friends star Matthew Perry renovated and added an infinity pool in his backyard nearly 14 months before he was found dead inside his newly installed hot tub, RadarOnline.com has exclusively learned.
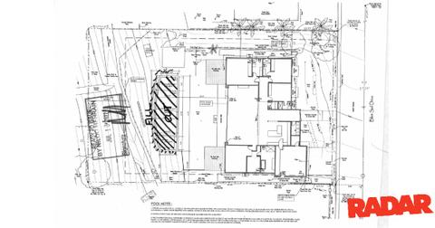
Back in August 2022, Perry applied for a permit for “excavation and backfill for a pool/spa” in the rear of his swanky Pacific Palisades home, according to records obtained by RadarOnline.com from the Los Angeles Department of Building and Safety.

Matthew Perry, 54, was found dead in a hot tub in the backyard of his L.A. home.
The building plans also showed Perry, 54, made sure the rear of his home was properly secure by installing an elaborate alarm system.
“Provide an alarm for all doors the dwelling give access to pool,” the notes on the architectural plans stated.
“The alarm shall sound continuous for a min. of 30 seconds when the door is open. It shall automatically reset and be equipped with manual means to deactivate for 15 secs max for a single opening. The deactivation switch shall be at least 54” above the floor.”

Records show he renovated his backyard and installed a pool and hot tub just months before his death.
The renovations were designed by the renowned Scott Joyce Design Inc. in West Hollywood, whose handy work has been featured in House Beautiful, House & Garden, and Luxe Interiors + Design.
The renovations also included land grading to give Perry a stunning view of the horizon, building records showed.
Shortly before his death, Perry posted an Instagram photo lounging in his new pool and the hot tub where he was found on October 28 dead and floating face down in the water by his assistant.
- Matthew Perry Sold Off $33 Million Worth of Real Estate in Last 2 Years Before Downsizing to $6 Million Pad Where He Died
 - 'Walking Pharmacies': Matthew Perry's Late-Night Pill Popping Parties With B-List Celeb Exposed
 - Matthew Perry's Last Sighting: 'Friends' Star in 'Good Spirits' on Lunch Date One Day Before Shocking Death
 

The Friends star posted a photo of himself in the hot tub days before he died.
The assistant had been dispatched on an errand and was not home.
“An adult male patient was deceased prior to first response arrival,” the LAFD said in a statement published in N.Y. Post. “The patient was found by a bystander who had re-positioned the victim where the head was out of water.”
Visit the all-new RADAR SPORTS for all the on and off-field activities of the biggest names in the games.

The rears of Perry's home before the renovation.
“Firefighters pulled the victim out of the jacuzzi and did a quick medical assessment to find he was deceased.”
It is unknown how long the Fools Rush In star was unconscious, and the L.A. County Coroner’s Office is conducting toxicology tests to determine the exact cause of death. A stockpile of prescription pills was recovered from the scene.
Powered by RedCircle

